Чалет в Gran Alacant, Gran Alacant - Santa Pola (2 спальни), Costa Blanca Південь €435,000
Other variations of this property
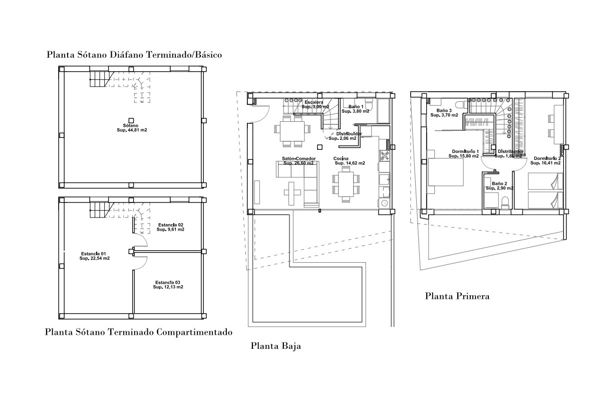
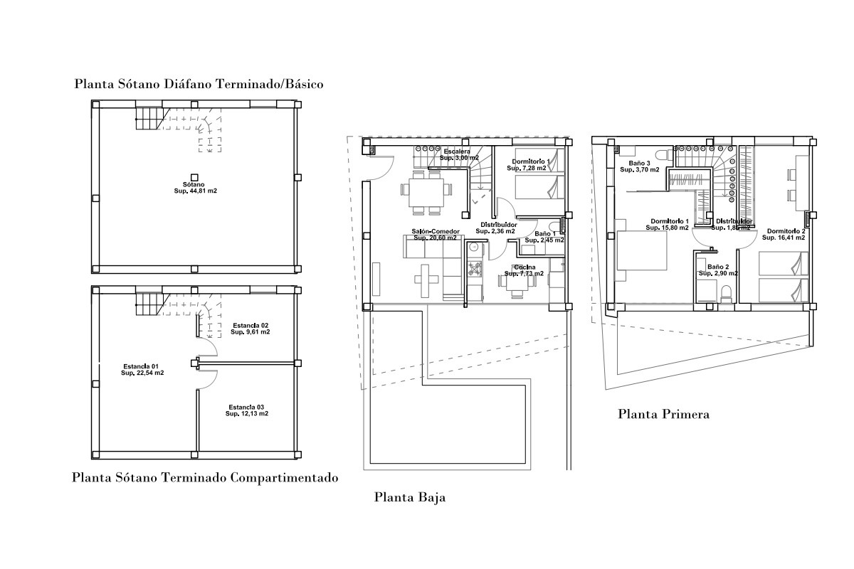
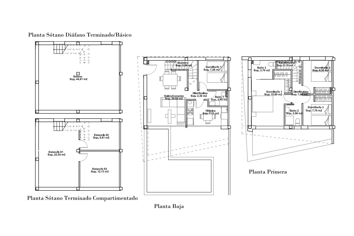
Linda is an exclusive project consisting of semi-detached villas with two to four bedrooms with private pool in Gran Alacant.
Every family is different, which is why Linda offers a range of layout options to suit your lifestyle. Clients can choose from various configurations, both on the ground floor and the first floor, as well as customize materials and finishes.
In all configurations, the basement can be finished or semi-finished, providing extra space to create a bespoke area: a leisure room, an office, a gym or an additional bedroom.
Linda is spread over three floors and is being built on plots of 215 m² or more. All homes feature a terrace, private swimming pool and parking space.
Linda is characterized by its privileged location in one of Alicante's most exclusive areas, close to the airport and just minutes from the best beaches. The area offers all necessary services: shopping centers, schools, sports facilities, and its proximity to the city of Alicante and the airport make it a highly sought-after location. Gran Alacant offers the perfect balance between peace and quiet and easy access to transport, just 10 minutes from the airport and with quick access to Alicante city.
Зберігти| Нова нерухомість | Чалет |
| Ціна від: €435,000 | Розмір: 108 m2 Побудовано |
| Reference: Linda | Спальні: 2 |
| Ванні кімнати: 3 | Elevator: Ні |
| Участок: 218 m2 | Фундамент: Ні |
| Кондиціонери: Підготовлено до установки | Побутова техніка: Ні |
| Гараж: Паркінг | ганок: Ні |
| Приватний басейн | Поруч з магазинами |
| Energy Certificate | переглянути PDF |











































