Виллы в Los Alcazares (3 спальни), Costa Cálida €590,000
Нова ексклюзивна вілла з приватним басейном, розташована в Los Alcazares, Мурсія, всього за 800 м від піщаних пляжів Mar Menor.
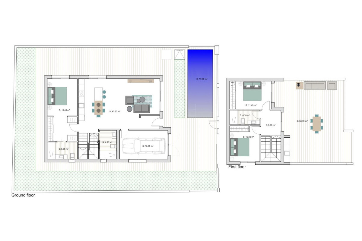
Вілла збудована на двох поверхах і включає 3 просторі спальні та 3 ванні кімнати, спроєктовані для комфорту та функціональності. На першому поверсі розташовані вітальня та обідня зона відкритого типу з сучасною кухнею та прямим виходом на терасу та басейн з водоспадом, а також закритий гараж. Тут також знаходиться велика спальня з гардеробною та власною ванною кімнатою, а також додаткова гостьова ванна кімната.
На другому поверсі розташовані дві спальні, які користуються спільною ванною кімнатою, та велика відкрита тераса площею 53 м² з літньою кухнею — ідеальне місце для відпочинку, прийомів гостей та насолоди середземноморським кліматом. Ця вілла з можливістю самостійного облаштування дозволяє персоналізувати інтер’єр та екстер’єр відповідно до вашого стилю життя.
Розташована у тихому житловому районі, ця власність пропонує ідеальний баланс між спокоєм і близькістю до всіх необхідних послуг. Los Alcazares — чарівне прибережне містечко, відоме довгою набережною, спокійними водами та розслабленим середземноморським стилем життя. Магазини, ресторани, супермаркети, школи та спортивні об’єкти знаходяться в зручній близькості, що робить цю віллу ідеальною для постійного проживання, відпочинку або інвестицій.
Аеропорт Мурсія Корвера — 30 км, Аеропорт Аліканте — 85 км.
Добавить в избранное| Новая недвижимость | Виллы |
| Цена от: €590,000 | Площадь: 150 m2 общая |
| Reference: Villa Lo Lorenzo | Спальни: 3 |
| Ванные: 3 | Терраса: 54 m2 |
| Ліфт: Ні | Земельна ділянка: 300 m2 |
| Підвал: Ні | Кондиционер: Pre-Installed |
| Бытовая техника: Так | Гараж: Так |
| Ґанок: Ні | Собственный бассейн |
| Рядом с пляжем | Рядом с магазинами |
| Енергетичний сертифікат | Просмотр презентации в формате PDF |













