Вілли в La Herrada, Los Montesinos (4 спальни), Costa Blanca Південь €460,000
Other variations of this property
Нові окремо розташовані вілли з приватним басейном у спокійному районі Ла Еррада, Лос Монтесінос.
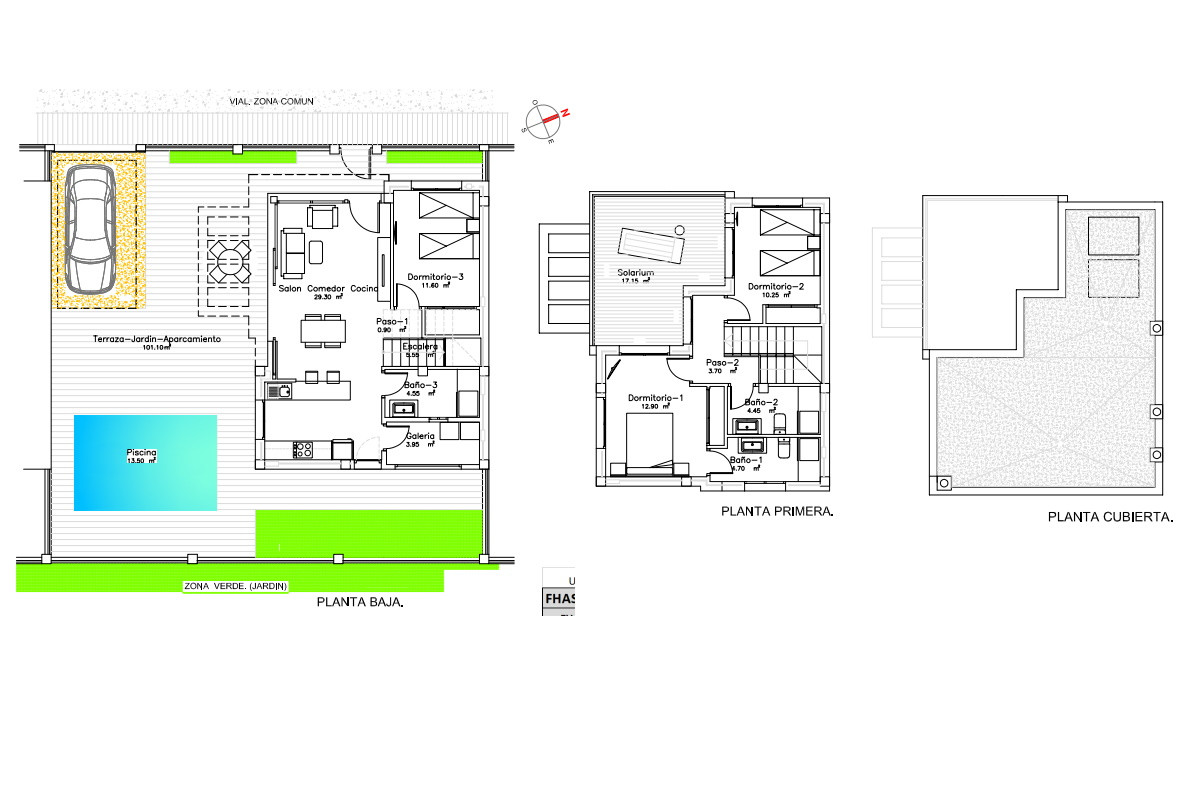
Цей ексклюзивний проєкт складається з 16 сучасних вілл із 3 спальнями та 3 ванними кімнатами, розташованих на двох поверхах.
На першому поверсі знаходиться простора вітальня відкритого планування з повністю інтегрованою кухнею та прямим виходом у сад і до зони басейну. Також на цьому рівні розміщені одна спальня, повноцінна ванна кімната та зручна пральня.
На верхньому поверсі розташовані дві просторі спальні, кожна з власною ванною кімнатою, одна з яких — en suite. Обидві спальні мають вихід на приватну відкриту терасу площею 17 м². Для тих, хто бажає ще більше простору на відкритому повітрі, за додаткову плату передбачена можливість облаштування соляріуму на даху.
Вілли збудовані на ділянках від 185 м² і пропонують щедрі зовнішні простори, ідеальні для засмаги, прийому гостей або відпочинку біля приватного басейну.
Ла Еррада відома своєю тихою житловою атмосферою, близькістю до щоденних сервісів та вигідним розташуванням між відомими соляними озерами Торрев’єхи та Ла Мата. Це ідеальне місце для тих, хто шукає спокійний і здоровий середземноморський стиль життя на півдні Коста-Бланки. Чемпіонські поля для гольфу La Finca та La Marquesa розташовані всього за кілька хвилин їзди. Великі плантації апельсинових дерев вкривають цю частину Коста-Бланки, наповнюючи повітря навесні солодким ароматом апельсинового цвіту. Район має зручне транспортне сполучення через автомагістралі N-332 та AP-7, а аеропорт Аліканте знаходиться лише за 20 хвилин їзди автомобілем.
Зберігти| Нова нерухомість | Вілли |
| Ціна від: €460,000 | Розмір: 130 m2 Побудовано |
| Reference: Villas Vinci | Спальні: 4 |
| Ванні кімнати: 3 | Elevator: Ні |
| Участок: 251 m2 | Фундамент: Ні |
| Кондиціонери: Підготовлено до установки | Побутова техніка: Ні |
| Гараж: Паркінг | ганок: Ні |
| Приватний басейн | Поруч з магазинами |
| Energy Certificate | переглянути PDF |







































