Tаунхаусы в Fuente Alamo (2 спальни), Costa Cálida €242,000
Los Altos de Las Palas — це новий житловий проєкт, що складається з вілл і таунхаусів із просторими земельними ділянками, відзначається високою якістю будівництва та сучасним стилем, який водночас зберігає традиційну архітектуру сільських маєтків цього регіону.
Los Altos de Las Palas розташований у мальовничій долині Мінґрано, всього за 4,2 км (6 хвилин їзди) від містечка Лас-Палас із ринком, численними барами, магазинами, ресторанами, медичним центром та іншою необхідною інфраструктурою.
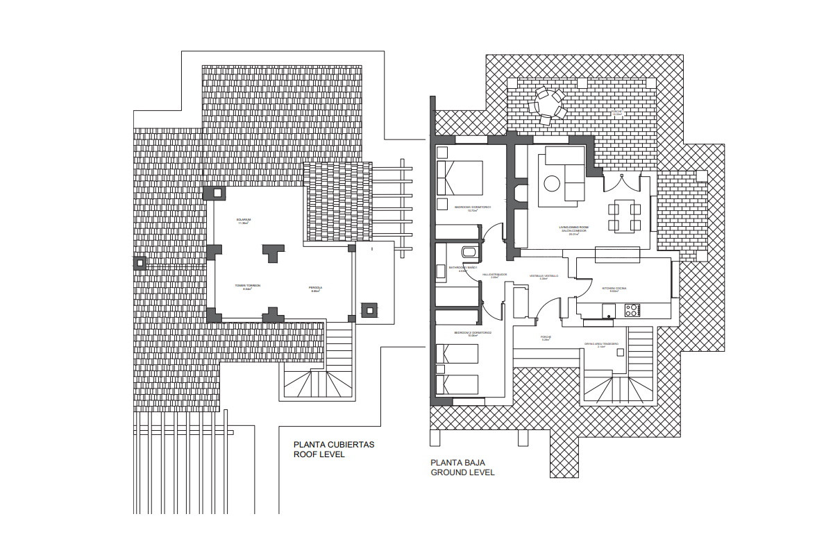
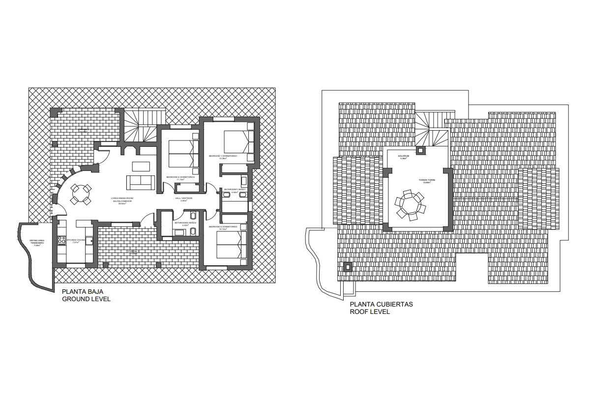
Вілли та таунхауси спроєктовані відповідно до найвищих вимог. Це просторі та комфортні будинки з великою кількістю внутрішнього й зовнішнього простору, критими верандами, окремою пральною кімнатою на вулиці, просторими вітальнями, вбудованими шафами, камінами у вітальних зонах та передніми терасами.
На вибір пропонується сім різних моделей вілл, створених з урахуванням різних смаків. Рустикальний дизайн поєднується з високоякісними матеріалами та продуманим плануванням для комфортного життя — тут кожен знайде щось для себе.
Запропоновані будинки були збудовані у 2008 році та повністю відремонтовані.
У Los Altos ви відкриєте для себе якісне будівництво та великі земельні ділянки, оточені дорослими ялинами та середземноморськими кипарисами, що створюють атмосферу спокійного сільського життя.
Життя в Los Altos de Las Palas ніколи не буде нудним. Комплекс має власний клубний будинок і басейни. У цьому районі доступний широкий вибір активностей: піші прогулянки горами, верхова їзда, вітрильний спорт, дайвінг, велоспорт та багато інших видів спорту. Поруч із житловим комплексом розташовано численні пляжі з кришталево чистою морською водою. Водночас тут є всі необхідні послуги для комфортного проживання.
Цей заміський житловий комплекс розташований в одному з найкрасивіших районів регіону Мурсія — біля підніжжя пагорбів, серед природних заповідників, пляжів і лісів.
Los Altos de Las Palas має чудове розташування з легким доступом до автомагістралі північ–південь, що знаходиться неподалік. За кілька хвилин можна відпочивати на пляжі в Масарроні, здійснювати покупки в Картахені, грати в гольф у Hacienda el Álamo, насолоджуватися Мар-Менором або зустрічати рідних у новому аеропорту Корвера.
Міжнародний аеропорт регіону Мурсія розташований менш ніж за 30 хвилин їзди, а 5-зірковий гольф-курорт Hacienda del Álamo — трохи більше ніж за 20 хвилин автомобілем. Кілька прибережних міст і селищ із чудовими піщаними пляжами знаходяться менш ніж за 30 хвилин. Неподалік також розташоване вражаюче середземноморське місто Картахена, а столиця регіону — місто Мурсія — за 40 хвилин їзди автомобілем.
Добавить в избранное| Под ключ | Tаунхаусы |
| Цена: €242,000 | Площадь: 175 m2 общая |
| Reference: 0 | Спальни: 2 |
| Ванные: 1 | Терраса: 16 m2 |
| Solarium: 20 m2 | Земельна ділянка: 430 m2 |
| Підвал: Ні | Кондиционер: Pre-Installed |
| Гараж: Паркування на ділянці | Ґанок: 5 m2 |
| Бассейн | Енергетичний сертифікат |
| Просмотр презентации в формате PDF |































