Вілли в Altea (4 спальни), Costa Blanca Північ €2,349,000
Azure Altea Homes II складається з великих розкішних незалежних вілл, головними героями яких є вид на море та природне освітлення. Ми не можемо забути про зовнішні зони та тераси, які так важливі, щоб мати можливість насолоджуватися чудовим середземноморським кліматом.
Вілла Plenum спроектована/запланована на ділянці з вражаючим видом на море в ексклюзивному районі, вілла, яка поєднує в собі дизайн, ефективність і якість. Вона має планування, розроблене таким чином, щоб максимально використати ємність землі та покращити вид на море з кімнат.
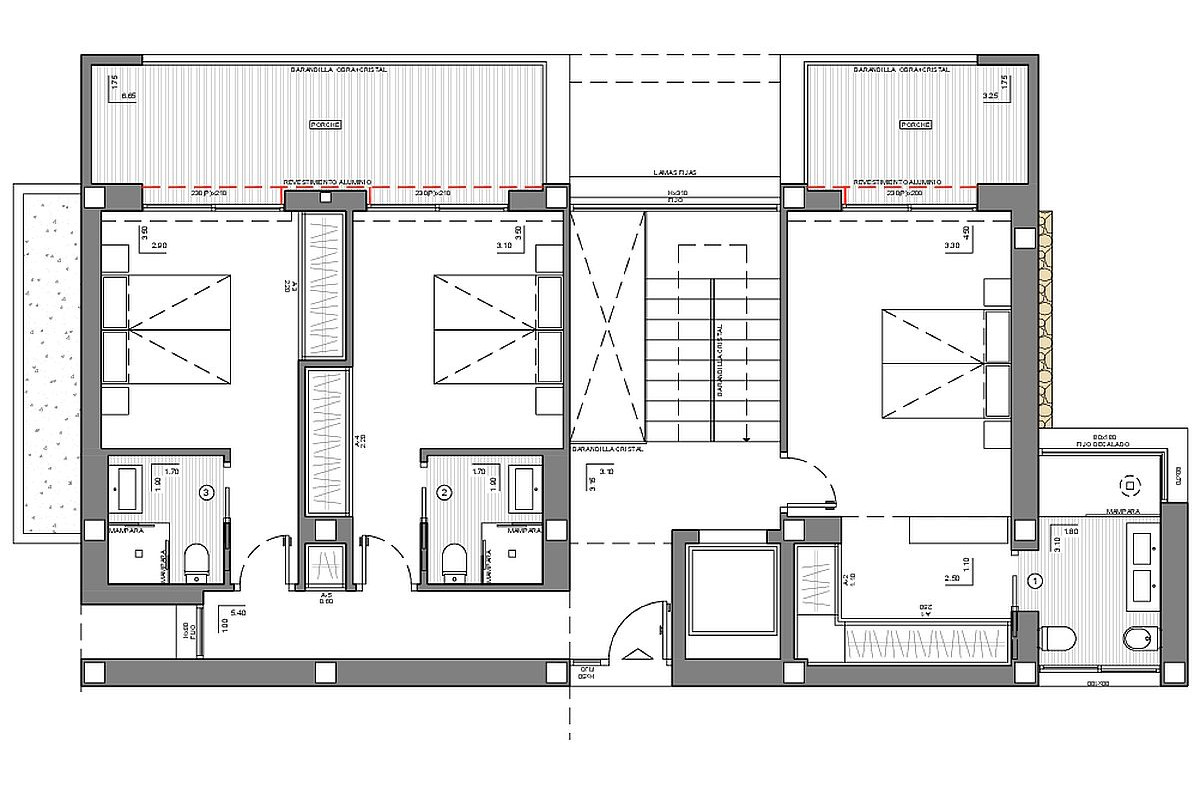
Вхід знаходиться на верхньому поверсі, де ви можете знайти хол, який з'єднується з гаражем, з місцем для двох автомобілів. Ми можемо скористатися сходами ліфта, щоб спуститися на середній поверх, де знаходиться головна спальня та ще дві спальні. Головна спальня має власну ванну кімнату, гардеробну та вихід на приватну терасу. Інші дві спальні також мають власну ванну кімнату, просторі шафи та спільну терасу.
На першому поверсі розташовані всі денні зони, відкритий і світлий простір. Кухня з центральним островом з’єднується з одним із ґанків і зовнішньою терасою, де нескінченний басейн перенесе нас до моря, не виходячи з дому. Простора вітальня/їдальня з великими вікнами та виходом на другий ганок і головну терасу є однією з перлин цієї вілли. На цьому поверсі ми також знаходимо пральню, внутрішню та зовнішню ванну для гостей, а також доступ до ліфта, який з’єднує нас з рештою будинку.
Зовнішні території цієї нерухомості мають велике значення через чудові краєвиди та середземноморський клімат, який запрошує нас жити на вулиці. Кілька терас, веранд і садових зон завершують дизайн цієї сенсаційної вілли в Альтеа.
Вілла Aura розташована в одному з найбажаніших районів Альтеа, поєднуючи в собі передові технології, комфортні інтер’єри, енергоефективність і матеріали, які покращують освітленість і простір.
Помешкання з панорамним видом на море та Бенідорм розташоване в привілейованому районі Альтеа. Архітектура з її сучасними та функціональними лініями розроблена таким чином, щоб дозволити простору дихати та відкриватися до великої тераси та басейну. Світло, повітря, море та рослинність дають зрозуміти, що стиль адаптується до ландшафту та інтегрується з ним.
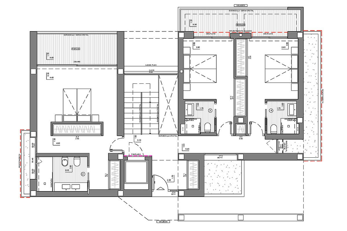
Дім побудований на трьох рівнях, доступ здійснюється через найвищий рівень, де знаходиться гараж і хол будинку, обладнаний ліфтом, щоб переміщення між рівнями було комфортним. На середньому поверсі розташовані три спальні, кожна з ванною кімнатою та виходом на терасу, щоб насолоджуватися морем з кожної кімнати будинку. На головному поверсі знаходиться четверта спальня цієї вілли, також з прямим виходом на терасу та всю денну зону, велика вітальня відкритого плану, з’єднана з кухнею, терасою та басейном.
Зовнішні простори, побудовані на різних рівнях, дозволяють каменю та місцевим рослинам виконувати свою декоративну роль, ідеально поєднуючись з оточенням.
Ці вілли спроектовані з великим відкритим простором, сучасні та універсальні. Створено з використанням найвишуканіших матеріалів і оздоблення, а також його енергоефективність – лише деякі з їхніх виняткових особливостей. Індивідуалізація є ключовою особливістю цього житлового району. Це дозволяє домовласникам адаптувати проекти до власних потреб або створювати власні вілли біля моря.
Azure Altea Homes II - це закритий житловий комплекс, доступ до якого мають лише власники будинків, з ексклюзивними незалежними віллами, з системою комунальної безпеки на вході.
Великі розкішні вілли з неймовірним розташуванням, поруч з Altea Club de Golf, поруч із пляжем "de la Olla" та спортивною пристанню "Campomanes". Він також розташований лише за 8 км від центру міста Альтеа та поруч із Альтеа-ла-Велья, двома містами, які традиційно відомі своєю якістю життя, послугами та вибором культури та мистецтва. Ви зможете займатися спортом, проводити культурні заходи, а також насолоджуватися різноманітними ресторанами з неперевершеним гастрономічним вибором. Він також мав прямий доступ з автошляху "del Mediterraneo", виїзд AP7-64.
Зберігти| Нова нерухомість | Вілли |
| Ціна від: €2,349,000 | Розмір: 229 m2 Побудовано |
| Reference: Azure Altea Homes II | Спальні: 4 |
| Ванні кімнати: 4+ 1 | Тераса: 38 m2 |
| Elevator: Так | Участок: 1006 m2 |
| Фундамент: Ні | Кондиціонери: Так |
| Побутова техніка: Так | Гараж: Паркінг |
| ганок: Ні | Приватний басейн |
| Мобільність з розумом | З видом на море |
| Energy rating: A | переглянути PDF |





































