Penthouse в Cumbre del Sol, Benitachell (2 спальни), Costa Blanca Північ €476,000
Other variations of this property
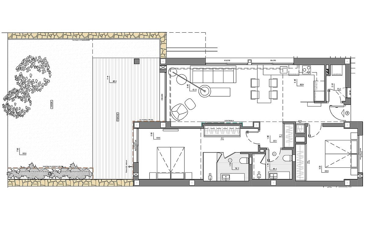
Новозбудовані квартири з сучасною архітектурою, з 2 або 3 спальнями та 2 ванними кімнатами, кухнею, відкритою до вітальні, з різними моделями на вибір, терасою та гаєм на першому поверсі та терасою на верхньому поверсі, всі розподілені щоб максимально використати простір, скориставшись перевагами середземноморського світла та запропонувавши комфорт у вашому повсякденному житті.
Обладнання в квартирах також орієнтоване на комфорт, підлоги з підігрівом, гарячим і холодним кондиціонуванням повітря за допомогою трубопроводів з термостатом у вітальні, гарячою водою за допомогою системи Altherma, електроприлади включені до проекту оздоблення, щоб надати їм стилю та тепла.
Зони загального користування призначені для відпочинку та насолоди сім’єю: басейн, оточений великими терасами, де можна насолоджуватися сонцем, дитячий майданчик, соціальний клуб, гаї та паркувальні зони.
Montecala Gardens оточений винятковою атмосферою, в якій вони підкреслюють чудові види на Середземне море, ідеальну пропозицію для проведення вільного часу з сім'єю в громадських зонах з різними басейнами, великими терасами для прийняття сонячних ванн, соціальним клубом, ігровими майданчиками для дітей, а також оскільки його розташування дозволяє нам здійснити кілька пішохідних турів, подібних до того, який веде нас до Кала-Ллебейг, унікального анклаву на узбережжі Коста-Бланка.
Ви також можете скористатися всіма послугами, які входять до складу Residential Resort Cumbre del Sol, комерційної зони, супермаркету, перукарні, аптеки, барів і ресторанів, кортів для падл тенісу, пішохідних доріжок, міжнародної школи Lady Elizabeth Junior School, hipico центр, пляж і бухти з пляжними барами, на короткій відстані є першокласні ресторани, визнані зірками Мішлена, гольф-клуби, морські клуби, всі послуги, які вам потрібні, щоб жити та насолоджуватися цілий рік.
На невеликій відстані від Кала-дель-Ллебейг, у природному середовищі, з приємними краєвидами та лише за 4 км від міського центру Морайри та всіх послуг.
| Нова нерухомість | Penthouse |
| Ціна від: €476,000 | Розмір: 89 m2 Побудовано |
| Reference: Montecala Gardens | Спальні: 2 |
| Ванні кімнати: 2 | Тераса: 31 m2 |
| Elevator: Так | Фундамент: Ні |
| Кондиціонери: Так | Побутова техніка: Так |
| Гараж: Зовнішне | ганок: 8 m2 |
| Громадський басейн | Поруч з пляжем |
| Поруч з магазинами | З видом на море |
| Energy rating: B | переглянути PDF |































